代理產品 /products

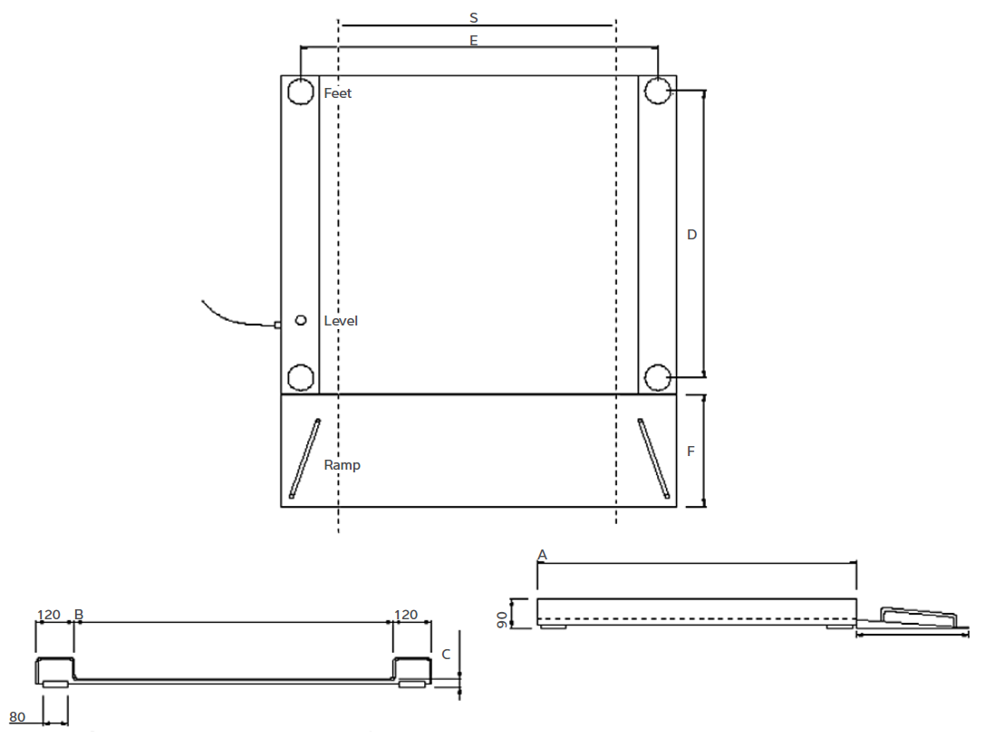
IF Flat-bed Scales

150kg~3000kg

詢價

 

主體分成2型

IFP4 Flat-bed scales, painted

一般烤漆斜坡秤

IFS4 Flat-bed scales, stainless steel

不鏽鋼斜坡秤

 

螢幕有3型可供選擇 

CAIS1/CAIS2/CAIS3

秤台大小 11型供選擇-詳細尺寸

 

秤量有分各等級

150kg/300kg/600kg/1500kg/3000kg

 

可選擇配件-推薦T5&T7